検索詳細ページ
小野4丁目 中古戸建 up
令和7年9月内外装全面リフォーム済/住機器新調
- 価格:
- 1,748万円
| 所在地 | 鹿児島市 小野4丁目 | ||
|---|---|---|---|
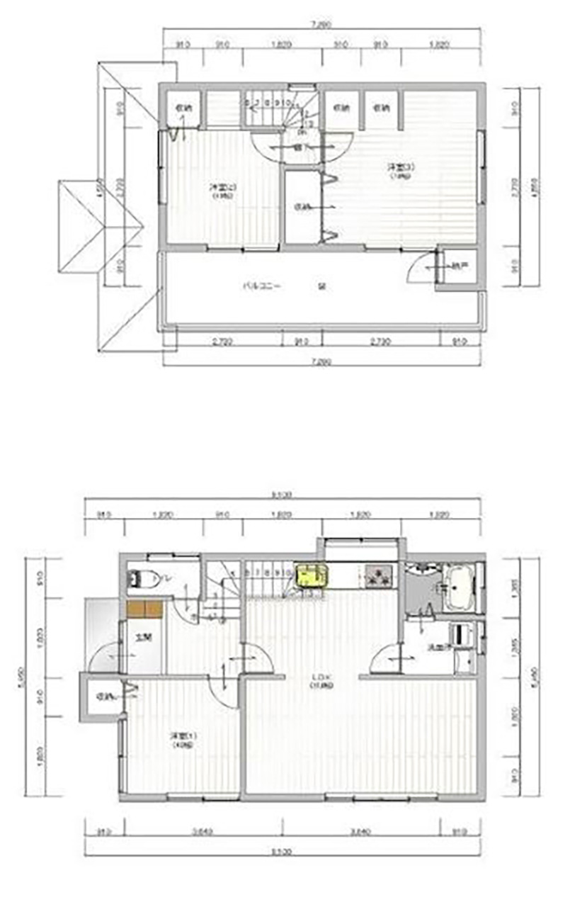
| 間取り | 3LDK | ||
| 土地面積 | 136.16m²(約41.18坪) | 建物面積 | 72.86m²(約22.04坪) |
| 交通 | <南国バス>小野4丁目バス停 徒歩7分 | ||
|---|---|---|---|
| 築年数 | 1986年3月(築39年) | 物件種別 | 中古戸建 |
| 建物構造 | 木造、2階建 | 駐車場 | 有 3台 |
| 学校区 | 玉江小 (2200m) / 伊敷中 (2500m) | 接道状況 | 公道 西側 |
| 都市計画 | 市街化区域 | 用途地域 | 第1種低層住居専用地域 |
| 建ぺい率 | 50% | 容積率 | 80% |
| こだわり | |||
| 取引形態 | 仲介 | 物件番号 | U140060D |
| 情報提供日 | 2025年11月18日 | 次回更新予定日 | 情報提供日より2週間以内に更新 |
備考
【間取り】1F:洋室,LDK,洗面室,浴室,トイレ 2F:洋室×2
◎静かな住宅街に位置する3LDKの一戸建て。令和7年9月に全面リフォーム済、住機器新調が魅力です。
◎駐車スペース3台分あります。車を複数台所有の方にもおすすめです。
◎飲食店やドラッグストアなどが立ち並ぶ国道3号線まで車で6分。
【周辺環境】令和7年11月7日現在
■タイヨー伊敷店/約1500m
■ドラッグストアコスモス下伊敷店/約1700m
■ファミリーマート小野4丁目店/約350m
■玉江小学校/約2200m
■伊敷中学校/約2500m
■くすの子保育園/約500m
◎静かな住宅街に位置する3LDKの一戸建て。令和7年9月に全面リフォーム済、住機器新調が魅力です。
◎駐車スペース3台分あります。車を複数台所有の方にもおすすめです。
◎飲食店やドラッグストアなどが立ち並ぶ国道3号線まで車で6分。
【周辺環境】令和7年11月7日現在
■タイヨー伊敷店/約1500m
■ドラッグストアコスモス下伊敷店/約1700m
■ファミリーマート小野4丁目店/約350m
■玉江小学校/約2200m
■伊敷中学校/約2500m
■くすの子保育園/約500m
- お取扱店舗
-
MBC不動産伊敷店
鹿児島市伊敷台5丁目9番6号
TEL:099-220-3333
他にもこんな物件が!





























