検索詳細ページ
玉里団地2丁目 新築戸建 up
駐車3台可/ゆったりした17帖のLDK
- 価格:
- 2,580万円
| 所在地 | 鹿児島市 玉里団地2丁目 | ||
|---|---|---|---|
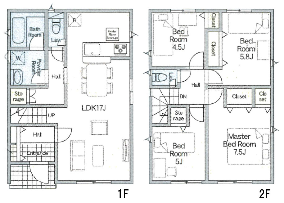
| 間取り | 4LDK | ||
| 土地面積 | 117.55m²(約35.55坪) | 建物面積 | 92.74m²(約28.05坪) |
| 交通 | <市営バス>第一公園前バス停 徒歩5分 | ||
|---|---|---|---|
| 築年数 | 2025年9月(築1ヶ月) | 物件種別 | 新築戸建 |
| 建物構造 | 木造、2階建 | 駐車場 | 有 3台 |
| 学校区 | 坂元台小 (350m) / 坂元中 (1200m) | 接道状況 | 公道 片面 南側/幅員 約4.8m |
| 都市計画 | 市街化区域 | 用途地域 | 第1種低層住居専用地域 |
| 建ぺい率 | 50% | 容積率 | 80% |
| こだわり |
|
||
| 取引形態 | 仲介 | 物件番号 | H130114D |
| 情報提供日 | 2025年10月27日 | 次回更新予定日 | 情報提供日より2週間以内に更新 |
備考
【間取り】1F:LDK17帖,洗面脱衣室,浴室,トイレ 2F:洋室7.5帖,洋室5.8帖,洋室5帖,洋室4.5帖,トイレ
◎会話が弾む対面キッチン。
◎制震装置「SAFE365」を装備。 粘弾性素材を使用しており、それがプレートの動きに合わせて変形して地震の揺れを吸収します。
◎換気暖房乾燥機付のユニットバス。
◎TVモニター付インターホンで扉を開かなくても玄関先の相手の姿を確認できます。
◎人感センサー付玄関灯・防犯カメラで安心安全!
※建築確認番号:第R07SHC111318号
【周辺環境】令和7年10月24日現在
■タイヨー玉里団地店/約850m(車で約3分)
■ローソン鹿児島玉里団地店/約750m(車で約3分)
■玉里団地保育園/約1200m(車で約4分)
■うちの幼稚園/約1000m(車で約4分)
■坂元台小学校/約350m(徒歩約5分)
■坂元中学校/約1200m(徒歩約16分)
◎会話が弾む対面キッチン。
◎制震装置「SAFE365」を装備。 粘弾性素材を使用しており、それがプレートの動きに合わせて変形して地震の揺れを吸収します。
◎換気暖房乾燥機付のユニットバス。
◎TVモニター付インターホンで扉を開かなくても玄関先の相手の姿を確認できます。
◎人感センサー付玄関灯・防犯カメラで安心安全!
※建築確認番号:第R07SHC111318号
【周辺環境】令和7年10月24日現在
■タイヨー玉里団地店/約850m(車で約3分)
■ローソン鹿児島玉里団地店/約750m(車で約3分)
■玉里団地保育園/約1200m(車で約4分)
■うちの幼稚園/約1000m(車で約4分)
■坂元台小学校/約350m(徒歩約5分)
■坂元中学校/約1200m(徒歩約16分)
- お取扱店舗
-
MBC不動産伊敷店
鹿児島市伊敷台5丁目9番6号
TEL:099-220-3333
他にもこんな物件が!


































